ARCHITECTS

FILOXENIA

18 /
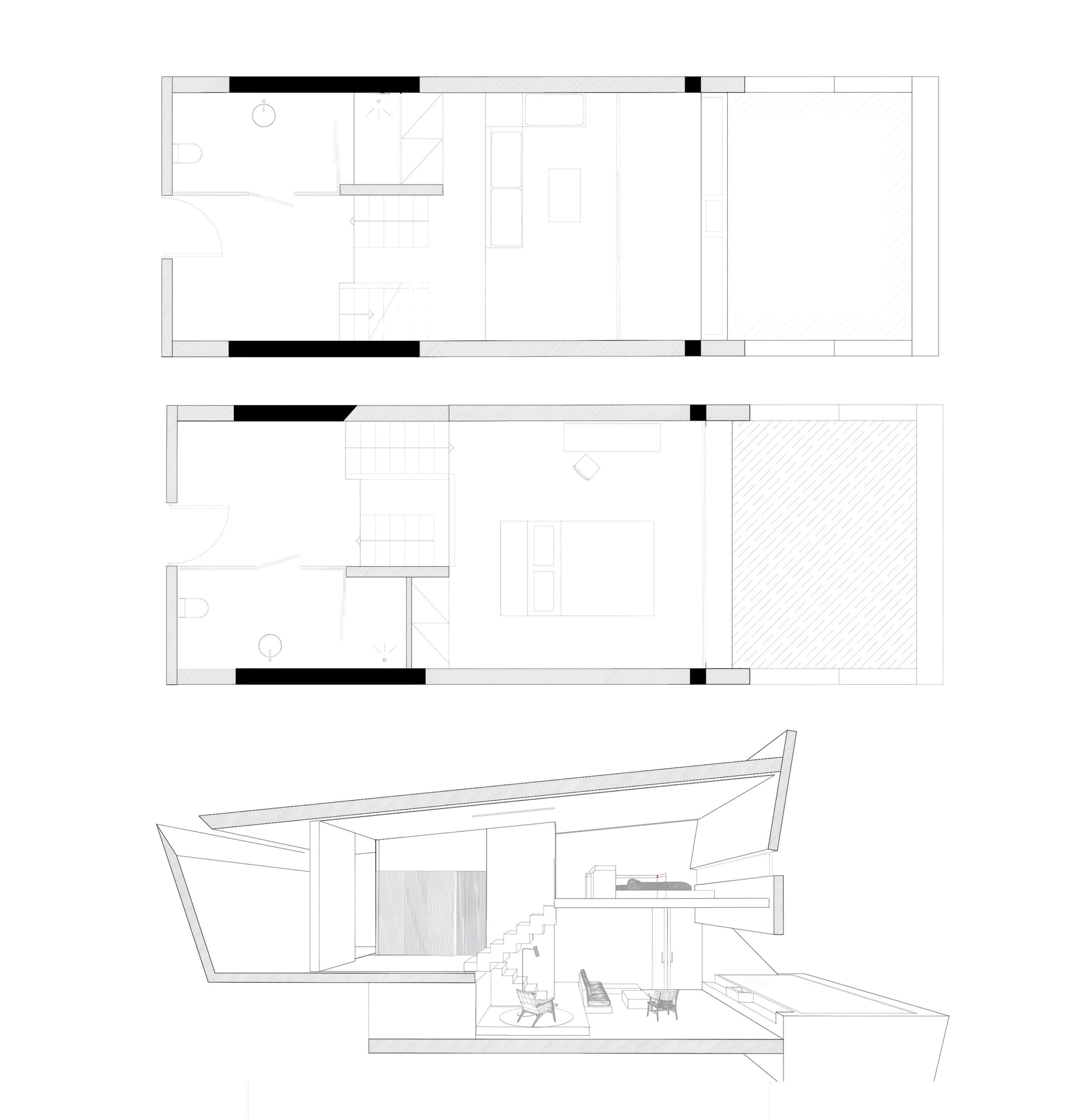
Tectonic Lodging-Hoovering Above an Earthquake
tectonic lodging
hoovering above an earthquake
prototype hotel in rhodes island
Lindos, Rhodes island, greece
3000 sqm
2018
prototype hotel
20 rooms w/ private pool
5 sites w/ private pool
lobby
restaurant
spa - lounge
2 outdoor pools
Fiore architects team
Florian liakos
alexis visvinis
irene helen marcantonatou
collaborator
aristides dallas
ARCHITECTS