ARCHITECTS

COMPETITIONS

2nd Prize
05 /
Restoration and Extension of the Karradeio Building on Chios Island

The proposal reimagines the historic Karraideio Building as a contemporary educational complex that actively engages with the urban fabric of Chios. The new addition is organized in a U-shaped layout around a generous central courtyard, conceived as an open civic space for students and the local community. This courtyard becomes the heart of the composition, mediating between public and academic life.

The central design concept is based on the creation of a unified, open and permeable composition that functions as a natural extension of the urban fabric. The new building is developed in a U-shaped layout around a spacious central courtyard, forming a protected yet publicly accessible core. The courtyard becomes the heart of the complex — a place of interaction, gathering and everyday student life — mediating between the historic structure and the contemporary addition.

The new wing is designed to coexist harmoniously with the existing neoclassical building, respecting its scale and architectural identity. Its height aligns with the balcony level of the historic façade, ensuring visual continuity and proportional balance. The architectural expression of the extension is defined by a perforated metal screen (contour cladding), creating a layered façade that acts as both environmental filter and architectural statement. Through the interplay of solid and void, opacity and transparency, past and present are placed in meaningful dialogue.

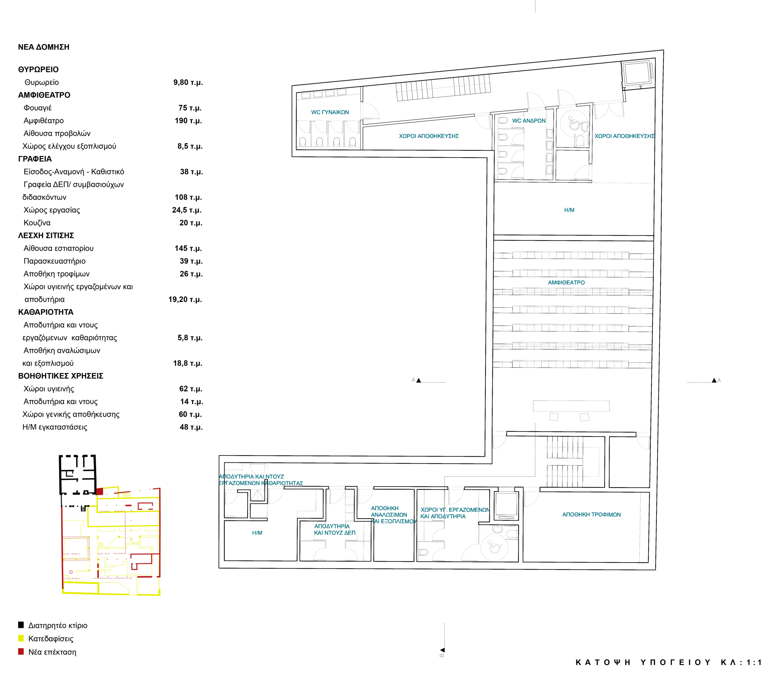
The program is organized around the courtyard. The ground floor hosts the foyer, amphitheater and student dining hall, ensuring direct accessibility and activating the public character of the complex. Faculty offices are located on the upper level of the new wing, while service and mechanical spaces are placed at basement level to maintain clarity and flexibility of the primary spaces.

The restoration strategy for the historic building focuses on preserving and highlighting its authentic morphological and structural features. Later additions are removed to restore façade coherence, original materials are conserved, and internal interventions remain minimal and reversible. The building accommodates student hub spaces at ground level and offices above, integrating contemporary needs without compromising its historical integrity.

The proposal envisions the Karraideio complex as a contemporary academic landmark — one that respects its historical legacy while offering an open, flexible and sustainable environment for future generations.

Restoration and Extension of the Karradeio Building on Chios Island
International Competition
2nd Prize
University of Aegean
2000 sqm
2025
Fiore Architects Team
Florian Liakos
Alexis Visvinis
Irene Helen Marcantonatou
Naiso Kokkala
Collaborators
Panagiotis Vasilatos
Structural Engineer
Manolis Manios
ARCHITECTS